- 市立大森小学校まで 600m
- 市立神町中学校まで 1400m
- 県立東桜学館中学・高校まで 1200m
- イオン東根店まで 900m
- ヤマザワ神町店まで 1100m
- おーばんさくらんぼ東根店まで 1500m



- 価格
- 1,380万円
- 種別
- 中古戸建
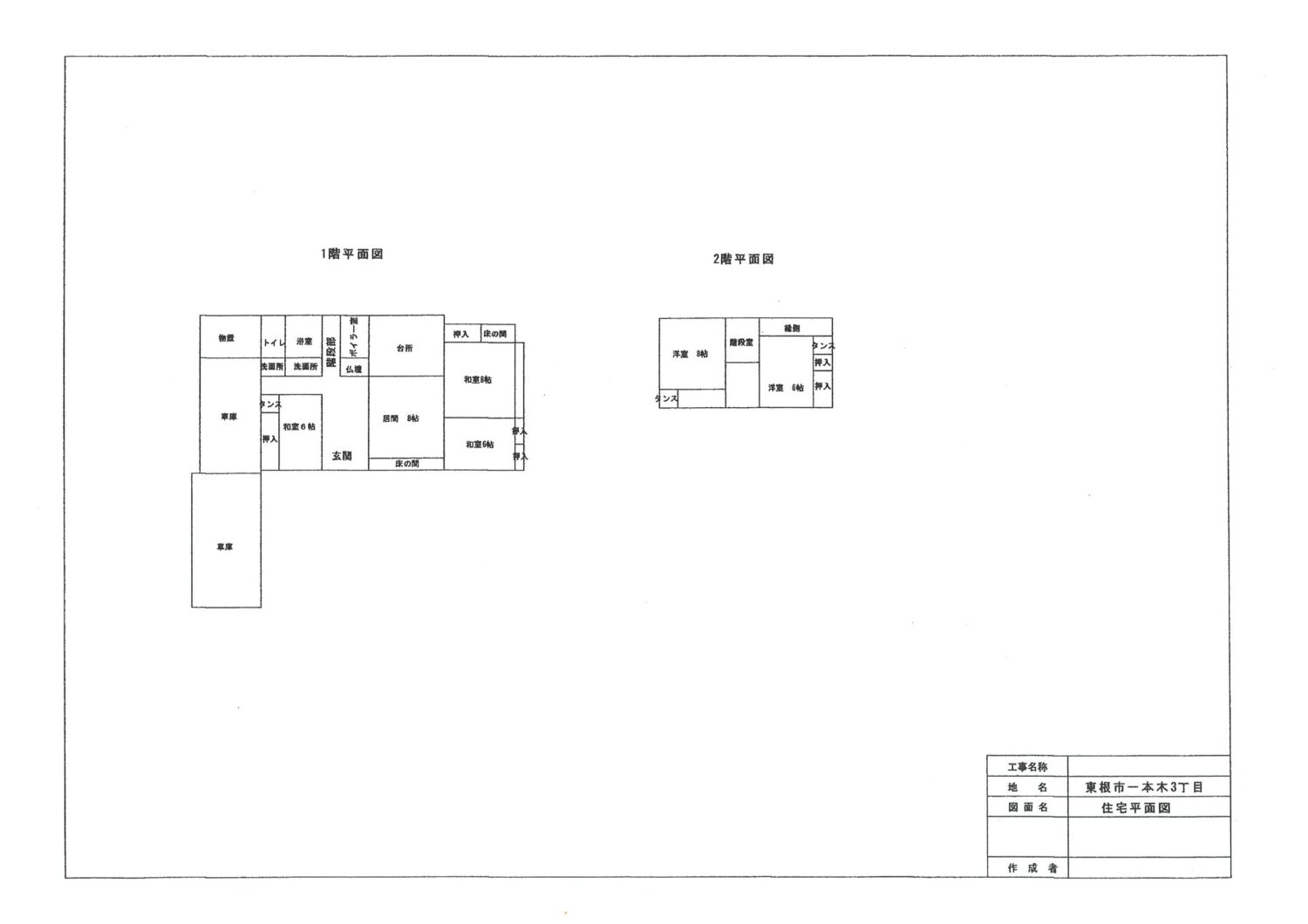
- 間取
- 6DK
-
- 所在地
- 山形県東根市一本木3丁目地内
- 交通
- JR奥羽本線 さくらんぼ東根駅 徒歩11分 (850m)
物件詳細
| 築年月 | 1980年5月 | 新築/中古 | 中古 |
|---|---|---|---|
| 面積 | 計測方式 | ||
| バルコニー | 向き | ||
| 建物階数 | 地上2階 | 部屋階数 | |
| 建物構造 | 木造 | ||
| 建築面積 | 143.79m² | ||
| 間取内容 | |||
| 駐車場 | 3~4台可 | 取引態様 | 仲介 |
| 引渡/入居時期 | 即時 | 現況 | 空家 |
| 地目 | 宅地 | 用途地域 | 準工業地域 |
| 都市計画 | 非線引き区域 | 地勢 | |
| 土地面積 | 403.17m² | 土地面積計測方式 | 公簿 |
| 建ぺい率 | 60% | 容積率 | 200% |
| 土地権利 | 所有権 | 接道状況 | 一方 |
| 接道方向1 | 南 | 接道間口1 | |
| 接道種別1 | 私道 | 接道幅員1 | 6m |
| 周辺環境 |
大森小学校 神町中学校 |
||
| 設備・条件 | 車庫有り 南側6m幅位置指定道路 |
||
| 物件番号 | 掲載期限日 | 2026/02/18 | |
| 特記事項 |
情報公開日:2025/3/10 |
||
Loading...
※物件掲載内容と現況に相違がある場合は現況を優先と致します。
お問い合わせはこちらからお寄せください
お電話からのご予約・お問い合わせ
TEL 0237-49-1130
営業時間09:00~18:00
定休日 土日祝日
WEBからのご予約・お問い合わせ


